| 
 | 
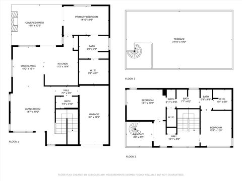
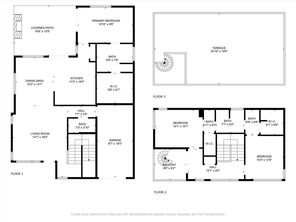
Tucked at the end of a quiet cul-de-sac and backing directly to Roy G. Guerrero Park, this architecturally distinct 3-bedroom, 2.5-bath home offers the kind of privacy and design rarely found in detached condos. Bold lines, natural materials, and modern finishes create a clean, Scandinavian aesthetic, while oversized windows and sliding doors flood the home with light across both levels. From the Calacatta quartz waterfall island to the custom Samsung appliances and gas range, every detail in the kitchen was built to anchor gatherings and simplify daily life. The layout is open and airy, with indoor-outdoor living on every level"”including a spacious covered patio with gas fireplace and a rooftop deck that's larger than the living room. The backyard is xeriscaped for low maintenance, but comes with drafted plans if you're ready to customize the space further. Located just 15 minutes from Downtown Austin, this home is a rare mix of design-forward living, true greenbelt access, and urban convenience"”all in one of the city's most under-the-radar locations.
PRE-FORECLOSURE
			 
			
		| LAST UPDATED | 9/27/2025 | TRACT | 6002 Ponca St Condo | 
|---|---|---|---|
| YEAR BUILT | 2022 | COMMUNITY | 6002 Ponca St Condo | 
| GARAGE SPACES | 1.0 | COUNTY | Travis | 
| STATUS | Active | PROPERTY TYPE(S) | Single Family | 
| Elementary School | Baty | 
|---|---|
| Jr. High School | Ojeda | 
| High School | Del Valle | 
| ADDITIONAL DETAILS | |
| AIR | Central Air | 
|---|---|
| AIR CONDITIONING | Yes | 
| APPLIANCES | Dishwasher, Disposal, ENERGY STAR Qualified Appliances, Microwave, Range, Stainless Steel Appliance(s) | 
| AREA | 9 | 
| CONSTRUCTION | HardiPlank Type | 
| EXTERIOR | Lighting, Private Entrance, Private Yard | 
| GARAGE | Attached Garage, Yes | 
| HEAT | Central, Forced Air | 
| INTERIOR | Double Vanity, Eat-in Kitchen, High Ceilings, Kitchen Island, Master Downstairs, Recessed Lighting, Walk-In Closet(s) | 
| LOT | 10454 sq ft | 
| LOT DESCRIPTION | Cul-De-Sac, Greenbelt | 
| PARKING | Attached, Driveway | 
| POOL DESCRIPTION | None | 
| SEWER | Public Sewer | 
| STORIES | 2 | 
| STYLE | 1st Floor Entry, Low Rise (1-3 Stories) | 
| SUBDIVISION | 6002 Ponca St Condo | 
| TAXES | 12331 | 
| UTILITIES | Cable Available, Electricity Connected, Phone Available, Sewer Connected | 
| VIEW | Yes | 
| VIEW DESCRIPTION | Park/Greenbelt | 
| WATER | Public | 
            MORTGAGE CALCULATOR
        
        TOTAL MONTHLY PAYMENT
0
                    P
                        I 
                    
            *Estimate only
        
    | SATELLITE VIEW | 
| / | |
	We respect your online privacy and will never spam you. By submitting this form with your telephone number
	you are consenting for Jude
	Galligan, REALTOR® to contact you even if your name is on a Federal or State
	"Do not call List".
	
    Property listed by Craig Souza, Compass RE Texas, LLC
	Based on information from the Austin Board of REALTORS ® (alternatively, from ACTRIS) for the period through 10/31/25 8:07 AM PDT. Neither the Board nor ACTRIS guarantees or is in any way responsible for its accuracy. All data is provided “AS IS” and with all faults. Data maintained by the Board or ACTRIS may not reflect all real estate activity in the market.
Information being provided is for consumers’ personal, non-commercial use and may not be used for any purpose other than to identify prospective properties consumers may be interested in purchasing.
	
	
	
    
Information being provided is for consumers’ personal, non-commercial use and may not be used for any purpose other than to identify prospective properties consumers may be interested in purchasing.
This IDX solution is (c) Diverse Solutions 2025.
 Twitter
									        Twitter Facebook
									        Facebook Email
									        Email 
									 
									 
									 
									 
									 
									 
									 
									 
									 
									 
									 
									 
									 
									 
									 
									 
									 
									 
									 
									 
									 
									 
									 
									 
									 
									 
									