| 
 | 
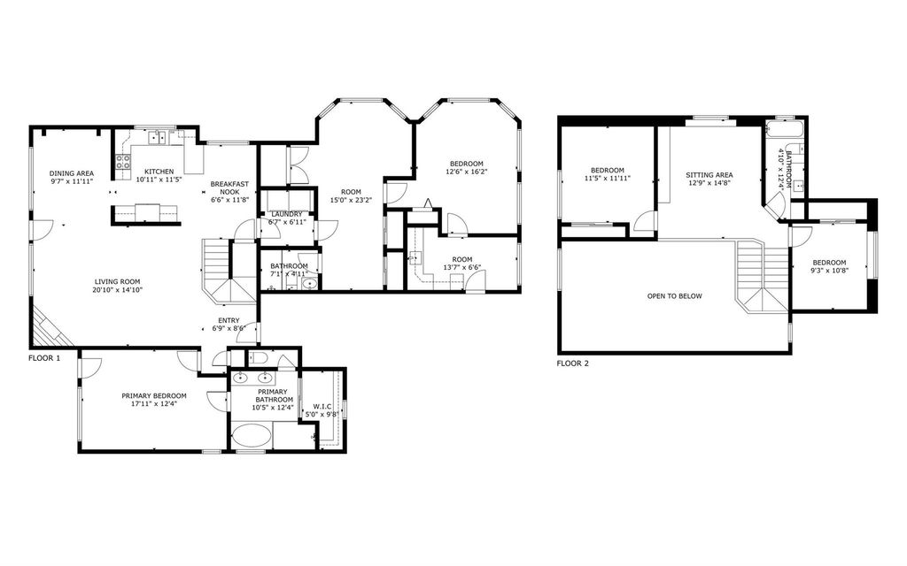
Welcome to 11402 Chessington Drive, a beautifully renovated home in a peaceful, established neighborhood. This spacious two-story residence offers three bedrooms and two full bathrooms in the main house, along with a finished garage conversion that includes a private full bathroom, kitchen, bedroom, and living area"”ideal for guests, extended stays, or flexible rental use. The home underwent extensive renovations in 2023, including new windows, flooring, remodeled kitchen and baths, fresh interior and exterior paint, and modern updates throughout. The main level features an open-concept living area with vaulted ceilings, large windows, and warm engineered wood flooring. The remodeled kitchen offers quartz countertops, stainless appliances, and updated cabinetry. The primary bedroom on the main floor includes an en-suite bath with soaking tub, dual vanities, separate shower, and walk-in closet. Upstairs are two more bedrooms, a full bath, and a versatile flex space for an office, media room, or play area. The garage conversion adds flexible living space ideal for multigenerational use or private guest quarters. Outside, the low-maintenance backyard features artificial turf, mature trees, and a shaded patio. The driveway offers ample parking, providing convenience for households with multiple vehicles or guests. The home is a short walk to Balcones Country Club, Spicewood Valley Trail, and Tanglewood Park, and just minutes from Apple Headquarters and The Domain. Located in a highly rated school district, with a bus stop right at the front and Canyon Vista Middle School within walking distance, this move-in-ready home offers excellent value and versatility in a prime Northwest Austin location - all with no HOA.
| LAST UPDATED | 10/20/2025 | TRACT | Tanglewood Estates | 
|---|---|---|---|
| YEAR BUILT | 1986 | COMMUNITY | Tanglewood Estates | 
| COUNTY | Travis | STATUS | Active | 
| PROPERTY TYPE(S) | Single Family | 
| Elementary School | Spicewood | 
|---|---|
| Jr. High School | Canyon Vista | 
| High School | Westwood | 
| PRICE HISTORY | |
| Prior to Oct 20, '25 | $799,000 | 
|---|---|
| Oct 20, '25 - Today | $780,000 | 
| ADDITIONAL DETAILS | |
| AIR | Central Air | 
|---|---|
| AIR CONDITIONING | Yes | 
| APPLIANCES | Dishwasher, Electric Oven, Electric Range, Microwave | 
| AREA | NW | 
| CONSTRUCTION | Brick, Wood Siding | 
| EXTERIOR | None | 
| FIREPLACE | Yes | 
| HEAT | Central | 
| INTERIOR | Coffered Ceiling(s), Master Downstairs, See Remarks | 
| LOT | 10524 sq ft | 
| PARKING | Off Street | 
| POOL DESCRIPTION | None | 
| SEWER | Public Sewer | 
| STORIES | 2 | 
| SUBDIVISION | Tanglewood Estates | 
| TAXES | 14430.49 | 
| UTILITIES | Electricity Connected, Sewer Connected, Water Connected | 
| VIEW DESCRIPTION | None | 
| WATER | Public | 
            MORTGAGE CALCULATOR
        
        TOTAL MONTHLY PAYMENT
0
                    P
                        I 
                    
            *Estimate only
        
    | SATELLITE VIEW | 
| / | |
	We respect your online privacy and will never spam you. By submitting this form with your telephone number
	you are consenting for Jude
	Galligan, REALTOR® to contact you even if your name is on a Federal or State
	"Do not call List".
	
    Property listed by Luisa Phou, Blackburn Properties
	Based on information from the Austin Board of REALTORS ® (alternatively, from ACTRIS) for the period through 10/31/25 2:52 AM PDT. Neither the Board nor ACTRIS guarantees or is in any way responsible for its accuracy. All data is provided “AS IS” and with all faults. Data maintained by the Board or ACTRIS may not reflect all real estate activity in the market.
Information being provided is for consumers’ personal, non-commercial use and may not be used for any purpose other than to identify prospective properties consumers may be interested in purchasing.
	
	
	
    
Information being provided is for consumers’ personal, non-commercial use and may not be used for any purpose other than to identify prospective properties consumers may be interested in purchasing.
This IDX solution is (c) Diverse Solutions 2025.
 Twitter
									        Twitter Facebook
									        Facebook Email
									        Email 
									 
									 
									 
									 
									 
									 
									 
									 
									 
									 
									 
									 
									 
									 
									 
									 
									 
									 
									 
									 
									 
									 
									 
									 
									 
									 
									 
									 
									 
									 
									 
									 
									 
									 
									 
									 
									 
									 
									 
									